Latour Woodland / Architectes | MAISON POT
15937
portfolio_page-template-default,single,single-portfolio_page,postid-15937,bridge-core-1.0.5,ajax_fade,page_not_loaded,,qode_grid_1200,qode-child-theme-ver-1.0.0,qode-theme-ver-17.2,qode-theme-bridge,disabled_footer_bottom,qode_header_in_grid,wpb-js-composer js-comp-ver-6.0.2,vc_responsive

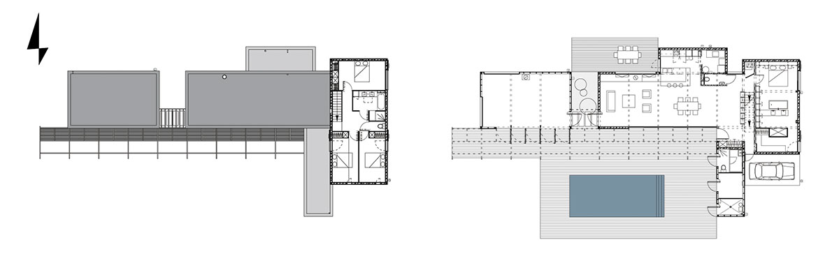
MAISON POT

MAISON POT

LIEU : Contis (40)
PROGRAMME : Construction d’une maison ossature bois et basse énergie
SURFACE : 200 m²

MAÎTRISE D’OUVRAGE: Privé
MAÎTRISE D’OEUVRE : Latour-Salier Architectes
CALENDRIER : Livré en 2010

COÛT TRAVAUX : 473 000 €ht

Date
Category
Maisons